Oldenburger Straße, Wardenburg
"Landgasthaus" mit Saalbetrieb, Restaurant und Gästezimmern zu verkaufen!
ID CR-308
"Landgasthaus" mit Saalbetrieb, Restaurant und Gästezimmern zu verkaufen!

Gästezimmer

Gästezimmer

Badezimmer Hotel

Bad

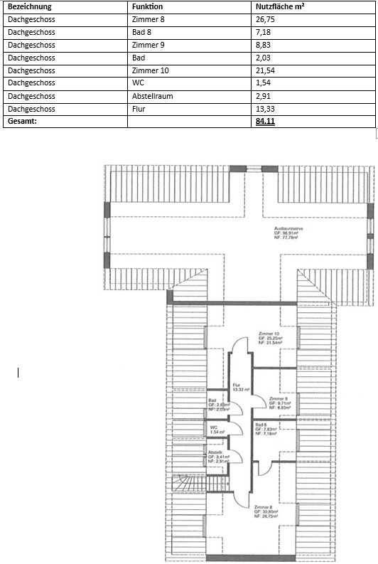
Berechnung DG

Berechnung 1. OG

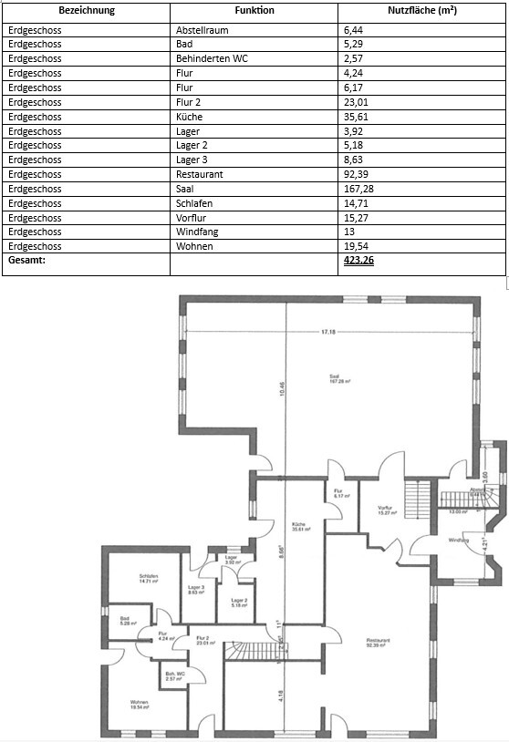
Berechnung Erdgeschoss

Berechnung Keller

Außenansicht

Außenansicht
Angaben zur Wohnung
Kaufpreis
1.200.000,00 €
Gesamtfläche
ca. 1.158 m²
Anzahl Zimmer
8
Objektbeschreibung
Zum Verkauf steht der Landgasthof mit Restaurant, Saalbetrieb und Gästezimmern im Landkreis Oldenburg. Der Landgasthof wurde im Jahr 1965 errichtet. Auf dem ca. 3.018m² großem Grundstück befindet sich dieses herzliche Landgasthaus, welches über eine Nutzfläche von ca. 1.158m² verfügt und sich auf drei Etagen verteilt. Über den Haupteingang erreichen Sie das ansprechend eingerichtete Restaurant. Hier finden ca. 70 Personen platz. Gegenüber liegt der im Jahr 1976 erweiterte und angebaute Saal, wo Hochzeiten, Firmenfeiern und Geburtstage mit bis zu 220 Personen gefeiert werden können. Die gut ausgestattete Gastronomieküche kann sowohl vom Saal, als auch vom Restaurant in Kürze erreicht werden, was den schnellen Service aufgrund der kurzen Wege sichert. Die Küche verfügt zusätzlich über einen großen Kühlraum. Eine Theke schmückt den Saal und das Restaurant. Die große Terrasse kann an schönen Sommertagen für die Außengastronomie hervorragend genutzt werden. Über eine Treppe gelangen Sie in das Kellergeschoss mit einigen Abstellmöglichkeiten sowie zu den Kundentoiletten. Im Erdgeschoss befindet sich das Behinderten-WC. Das Ober- und Dachgeschoss können Sie ebenfalls über das Treppenhaus erreichen. Im Obergeschoss erwarten Sie sieben Hotelzimmer mit eigenen Badezimmern. Alle Zimmer wurde im Jahr 2022 renoviert und zum Teil mit einer kleinen Pantryküche ausgestattet. Zusätzlich ist eine Ausbaureserve von neun Zimmern im 1. Obergeschoss möglich. Im Dachgeschoss befinden sich zwei Wohnungen, diese sind aktuell fest vermietet. Ein kleines, weiteres Zimmer befindet sich ebenfalls auf dieser Etage. Im EG befindet sich ein weiteres Zimmer, bestehend aus zwei Räumen und Bad. Ca. 30 Parkplätze stehen auf dem Grundstück zur Verfügung. Ein Nebengebäude befindet sich ebenfalls auf dem Grundstück, dieses kann zu einem Einfamilienhaus als Betriebswohnung umgebaut werden. Voraussetzung ist lediglich, dass ein Überwegungsrecht vom Hauptgebäude eingetragen wird.Ausstattung
+ Landgasthof+ Massivbauweise
+ Restaurant
+ Saalbetrieb
+ Gästezimmer
+ Außengastronomie
+ Baujahr: 1965
+ Grundstücksgröße: circa 3.018m²
+ Nutzfläche: circa 1.158m²
+ circa 30 Parkplätze
+ 3 Garagenstellplätze
+ Terrasse 120 m²
+ Inventar im Kaufpreis enthalten
+ Ausbaureserve für 9 Zimmer möglich
+ Ausbau des Daches über dem Saal im Jahr 2009
+ Die Sollmieten für die einzelnen Zimmer liegen bei 95 EUR pro Zimmer und Nacht
+ kein Lastenfahrstuhl ! Die Gasheizung wurde im Jahr 2018 erneuert ! Die Bebauungsmöglichkeiten für dieses Grundstück müssen gemäß dem §35 BauGB mit der zuständigen Gemeinde abgesprochen werden.