Kanalstraße, Oldenburg

Exklusives Reihenendhaus angrenzend an die alte Amalienstraße in Oldenburg

ID CR-306_1

Exklusives Reihenendhaus angrenzend an die alte Amalienstraße in Oldenburg

Ansicht
Ansicht
Ansicht
Loggia
Visualisierung
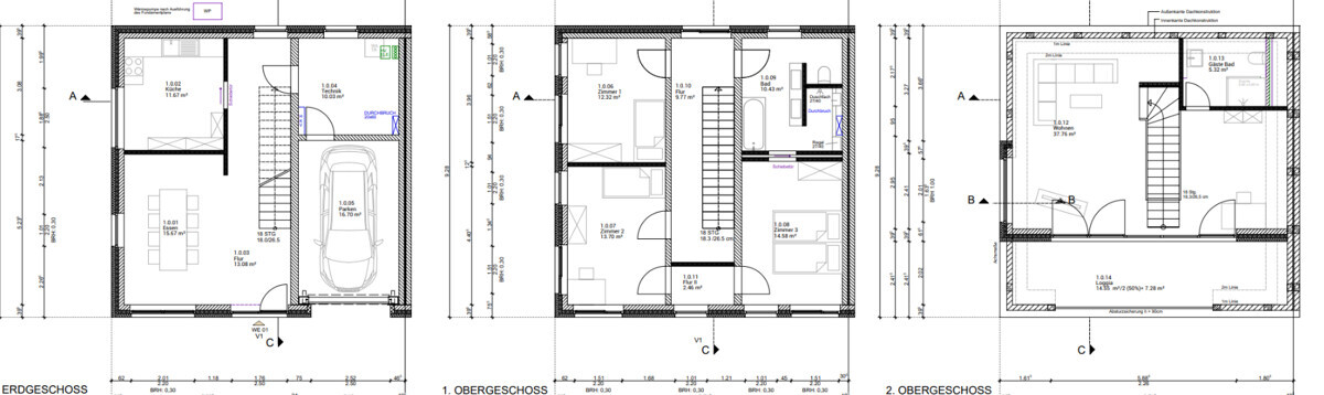
Haus links_Grundriss

Angaben zur Wohnung

Kaufpreis
935.000,00 €
Wohnfläche
ca. 164 m²
Anzahl Zimmer
5
Anzahl Schlafzimmer
4
Anzahl Badezimmer
1

Objektbeschreibung

In einer der begehrtesten Lagen Oldenburgs entstehen drei exklusive Reihenhäuser, die durch ihren direkten Wasserblick und ihre zentrale Lage bestechen. Diese stilvollen Stadthäuser bieten Ihnen nicht nur ein modernes Wohnambiente, sondern auch die Möglichkeit, das städtische Leben in unmittelbarer Nähe zu genießen. Dieses Reihenendhaus direkt an der alten Amalienstraße verfügt über eine Wohnfläche von ca. 164 m² mit innenliegender Garage. Das Haus erstreckt sich über drei Etagen und bietet daher mehrere Möglichkeiten der Zimmeraufteilung. Schlafzimmer, Gästezimmer, Büro und Wohnzimmer sind umsetzbar. Ein Badezimmer sowie ein separates WC finden Sie in den oberen Etagen. Die Loggia mit direktem Blick auf das Wasser runden das Angebot ab. Die Grundrissaufteilung kann noch an Ihre Wünsche angepasst werden. Genießen Sie in Ihrem neuen Zuhause die ruhige Umgebung direkt am Kanal aber auch in die Nähe zur Oldenburger Innenstadt. Beim Kauf dieser Immobilie haben Sie die Möglichkeit, ein gefördertes Darlehen in Höhe von bis zu 100.000 € zu nutzen. Dieses wird zu einem besonders attraktiven Zinssatz von 2,11 % angeboten. Die Zinsbindung läuft bis 2034.

Ausstattung

+ 152 m² Grundstück
+ Grundstücke real geteilt
+ Luft-Wasser-Wärmepumpe
+ KfN (Klimafreundlicher Neubau)
+ PV Anlage mit Speicher
+ Fingerprintsensor
+ Fußbodenheizung
+ Außenjalousie und Raffstoreanlage
+ Garage direkt im Objekt
+ Blick auf den Kanal
+ Innenstadtnähe Die Grundrisse können in gewissem Maße angepasst werden, sodass Sie die Möglichkeit haben, Grundrissänderungen vorzunehmen. Bitte beachten Sie, dass wir Ihre Änderungswünsche im Einzelfall prüfen müssen.

Lage

Die Kanalstraße überzeugt durch ihre hervorragende Lage in einem der beliebtesten Wohnviertel Oldenburgs. Die Umgebung vereint städtisches Flair mit einer ruhigen und gepflegten Nachbarschaft. Charmante Altbauten sowie begrünte Außenanlagen prägen das Bild und sorgen für ein angenehmes Wohnumfeld mit hoher Lebensqualität. Der tägliche Bedarf ist optimal gedeckt: Supermärkte, Bäckereien, kleine Boutiquen sowie vielfältige Cafés und Restaurants sind bequem zu Fuß oder mit dem Fahrrad erreichbar. Auch der Anschluss an den öffentlichen Nahverkehr ist ausgezeichnet: Bushaltestellen befinden sich in unmittelbarer Nähe, sodass das Oldenburger Stadtzentrum sowie weitere Stadtteile in wenigen Minuten erreicht werden können. Für Pendler ist zudem die schnelle Anbindung an die Hauptverkehrsachsen von Vorteil. Familien profitieren von der sehr guten Infrastruktur des Viertels: Mehrere Kindergärten, Grundschulen und weiterführende Schulen liegen in kurzer Distanz. Auch Spielplätze, Sportvereine und Freizeitangebote sind vielfältig vorhanden. Darüber hinaus lädt die Lage zu entspannenden Spaziergängen am Wasser oder durch die angrenzenden Grünanlagen ein. Wer Kultur und Unterhaltung schätzt, findet in der Innenstadt ein reichhaltiges Angebot an Museen, Theatern und Veranstaltungen. Insgesamt bietet die Kanalstraße eine perfekte Balance aus modernem Wohnen, familienfreundlicher Infrastruktur und hoher Freizeitqualität. Ein idealer Standort für alle, die zentral und dennoch ruhig leben möchten.

Sonstiges

Unsere Immobilienangebote verstehen sich freibleibend und unverbindlich. Zwischenvermittlung ausdrücklich vorbehalten. Die Angaben zum Objekt basieren auf erteilten Informationen Dritter. Für die Richtigkeit und Vollständigkeit kann deshalb keine Haftung übernommen werden. Wir können Anfragen nur mit vollständig angegebenem Namen, Adresse und Telefonnummer bearbeiten. Wir bitten um Ihr Verständnis. Die erforderlichen Energieangaben wurden entweder bereits im Exposé eingetragen oder der Energieausweis befindet sich derzeit in Bearbeitung. Alle in dieser Anzeige gemachten Angaben, insbesondere zu den Energieverbrauchswerten, beruhen auf den Informationen aus dem uns vorliegenden Energieausweis. Trotz sorgfältiger Prüfung können unvollständige oder fehlende Angaben nicht vollständig ausgeschlossen werden. Für die Richtigkeit und Vollständigkeit der Angaben übernehmen wir daher keine Gewähr. Der vollständige Energieausweis kann jederzeit angefordert und eingesehen werden. Sollten Angaben im Exposé fehlen oder unvollständig sein, bitten wir höflich um Mitteilung, damit wir diese ergänzen können. Maßgeblich sind in jedem Fall die Daten aus dem vorliegenden Energieausweis. Sollte dieser in Bearbeitung sein, werden die Angaben umgehend nach Erhalt des Ausweises aufgenommen. Für dieses Objekt befindet sich der Energieausweis aktuell in Bearbeitung!

Anfrage

Deine Anfrage zu der Immobilie „Exklusives Reihenendhaus angrenzend an die alte Amalienstraße in Oldenburg“ (CR-306_1)

Kontaktformular

Deine Anfrage zu der Immobilie „Exklusives Reihenendhaus angrenzend an die alte Amalienstraße in Oldenburg“ (CR-306_1)