Rastdorf

Modernes Einfamilienhaus in Rastdorf *großer Garten + Parkett + Badewanne + Ankleidezimmer*

ID CR-429

Modernes Einfamilienhaus in Rastdorf *großer Garten + Parkett + Badewanne + Ankleidezimmer*

Außenansicht
Außenansicht
Luftbild
Eingangsbereich
Wohn-/Essbereich
Essbereich
Küche
Kücheninsel
HWR
Gäste WC
Gäste WC
Treppe
Großes Bad
Grundriss EG
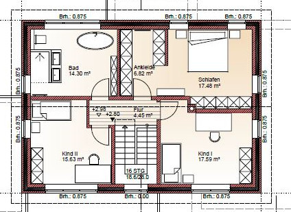
Grundriss OG

Angaben zur Wohnung

Kaufpreis
544.950,00 €
Wohnfläche
ca. 181 m²
Anzahl Zimmer
5
Anzahl Schlafzimmer
4
Anzahl Badezimmer
2

Objektbeschreibung

Dieses 2020 erbaute Einfamilienhaus in Rastdorf besticht durch seine Ausstattung und die ruhige, familienfreundliche Lage in einer Spielstraße. Es bietet modernen Komfort und viel Platz für eine komfortable Lebensweise. Die großzügige Wohnfläche ist mit edlen Materialien gestaltet, darunter ein stilvoller Parkettboden und großformatige Fliesen, die für ein modernes Ambiente sorgen. Die offene Raumgestaltung und die großen Fensterflächen tragen zu einer hellen und einladenden Atmosphäre bei. Die moderne Küche ist mit hochwertigen Markengeräten ausgestattet und lässt keine Wünsche offen – perfekt für Kochliebhaber und die ganze Familie. Direkt angrenzend befindet sich der großzügige Wohn- und Essbereich, der Zugang zu einem großen Garten bietet. Das Haus verfügt über eine Doppelgarage, die ausreichend Platz für zwei Autos sowie zusätzlichen Stauraum bietet. Eine Photovoltaikanlage auf dem Dach und eine Wärmepumpe sorgen für eine umweltfreundliche und kostensparende Energieversorgung. Für zusätzlichen Komfort sorgt die Fußbodenheizung. Das Gäste-WC ist mit einer modernen, ebenerdigen Dusche ausgestattet, während das Hauptbad mit Dusche und einer Badewanne ausgestattet ist. Ein praktischer Hauswirtschaftsraum mit Waschmaschinenanschluss und einer kleinen Küchenzeile sorgt für zusätzlichen Stauraum und Organisation im Alltag. Das ans Schlafzimmer angrenzende Ankleidezimmer im Obergeschoss ist mit hochwertigen Einbauschränken ausgestattet, die viel Stauraum bieten und für Ordnung sorgen. Dieses Einfamilienhaus in Rastdorf bietet nicht nur eine perfekte Mischung aus Funktionalität und Eleganz, sondern auch eine hervorragende Lage in einer ruhigen Spielstraße, die besonders für Familien ideal ist. Hier genießen Sie modernes Wohnen in einer gepflegten, naturnahen Umgebung mit ausgezeichnetem Komfort.

Ausstattung

Parkettboden und Großformatfliesen
großer Garten mit Gartenhaus
moderne Küche mit Markengeräten
Doppelgarage
PV
Anlage 9
9 KW mit 5 KW Speicher
Erdwärme
Lüftungsanlage
Fußbodenheizung
Gäste
WC mit ebenerdiger Dusche
Badewanne
HWR mit Waschmaschinenanschluss und Küchenzeile
Ankleidezimmer mit Einbauschränken

Lage

Das angebotene Einfamilienhaus befindet sich in der idyllischen Gemeinde Rastdorf, in der Samtgemeinde Werlte, im Landkreis Emsland. Dank der naturnahen und ruhigen Lage eignet sich Rastdorf hervorragend für Familien, die eine hohe Lebensqualität inmitten der Natur suchen. Die Gemeinde bietet einen Kindergarten und eine eigene Grundschule, sodass der Schulweg für junge Familien bequem ist. Die nächsten Einkaufsmöglichkeiten befinden sich in den benachbarten Orten Lorup und Vrees, die nur etwa 5 Minuten mit dem Auto entfernt sind. Hier finden Sie alle Geschäfte des täglichen Bedarfs, darunter Bäckereien, Supermärkte und Banken. Zudem liegt 7 km entfernt der Ort Werlte, der von Handwerksbetrieben und mittelständischen Unternehmen geprägt ist. Rastdorf erhält ab Februar 2025 außerdem einen eigenen Lebensmittelmarkt. Für Freizeitaktivitäten und Erholung ist ebenfalls bestens gesorgt: Der Tier- und Freizeitpark Thüle sowie der Eleonorenwald sind in nur 20 Minuten mit dem Auto erreichbar und bieten vielfältige Möglichkeiten zur Entspannung und für Ausflüge in die Natur. Die Städte Cloppenburg (ca. 30 Minuten Fahrzeit) und Friesoythe (ca. 20 Minuten Fahrzeit) sind ebenfalls schnell erreichbar und bieten eine ausgezeichnete Anbindung an überregionale Verkehrswege sowie ein breites Angebot an Einkaufsmöglichkeiten, Restaurants und kulturellen Angeboten.

Sonstiges

Unsere Immobilienangebote verstehen sich freibleibend und unverbindlich. Zwischenvermittlung ausdrücklich vorbehalten. Die Angaben zum Objekt basieren auf erteilten Informationen Dritter. Für die Richtigkeit und Vollständigkeit kann deshalb keine Haftung übernommen werden. Im Fall des Kaufs der Immobilie, hat der Käufer die ortsübliche Provision an CapitalReal GmbH & Co. KG zu zahlen. Die Provision ist mit Wirksamwerden des Hauptvertrages fällig. Wir können Anfragen nur mit vollständig angegebenem Namen, Adresse und Telefonnummer bearbeiten. Wir bitten um Ihr Verständnis. Die erforderlichen Energieangaben wurden entweder bereits im Exposé eingetragen oder der Energieausweis befindet sich derzeit in Bearbeitung. Alle in dieser Anzeige gemachten Angaben, insbesondere zu den Energieverbrauchswerten, beruhen auf den Informationen aus dem uns vorliegenden Energieausweis. Trotz sorgfältiger Prüfung können unvollständige oder fehlende Angaben nicht vollständig ausgeschlossen werden. Für die Richtigkeit und Vollständigkeit der Angaben übernehmen wir daher keine Gewähr. Der vollständige Energieausweis kann jederzeit angefordert und eingesehen werden. Sollten Angaben im Exposé fehlen oder unvollständig sein, bitten wir höflich um Mitteilung, damit wir diese ergänzen können. Maßgeblich sind in jedem Fall die Daten aus dem vorliegenden Energieausweis. Sollte dieser in Bearbeitung sein, werden die Angaben umgehend nach Erhalt des Ausweises aufgenommen. Für dieses Objekt befindet sich der Energieausweis aktuell in Bearbeitung.

Anfrage

Deine Anfrage zu der Immobilie „Modernes Einfamilienhaus in Rastdorf *großer Garten + Parkett + Badewanne + Ankleidezimmer*“ (CR-429)

Kontaktformular

Deine Anfrage zu der Immobilie „Modernes Einfamilienhaus in Rastdorf *großer Garten + Parkett + Badewanne + Ankleidezimmer*“ (CR-429)