Wardenburg
Idyllisches Einfamilienhaus mit großem Garten und Ausbaupotenzial in ruhiger Lage von Tungeln
ID CR-432
Idyllisches Einfamilienhaus mit großem Garten und Ausbaupotenzial in ruhiger Lage von Tungeln

Verkauft

Ansicht

Ansicht

Ansicht

Eingang mit Garage

Eingang

Treppe

Küche

Wohnen/Essen

Gäste-WC

Schlafen

Badezimmer

Terrasse

Garten

Gartenhütte

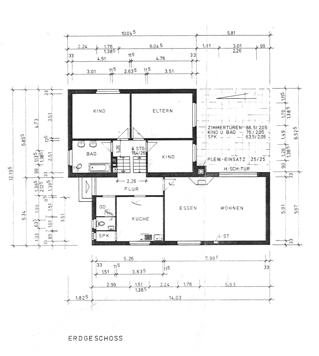
EG

OG

DG
Angaben zur Wohnung
Kaufpreis
299.750,00 €
Wohnfläche
ca. 115 m²
Anzahl Zimmer
5
Anzahl Schlafzimmer
4
Anzahl Badezimmer
1
Objektbeschreibung
Inmitten einer ruhigen 30er-Zone im beliebten Ortsteil Tungeln der Gemeinde Wardenburg erwartet Sie dieses charmante, freistehende Einfamilienhaus aus dem Jahr 1979 , ein ideales Zuhause für Familien. Das Haus verfügt über fünf gut geschnittene Zimmer, die reichlich Platz für individuelle Wohnideen bieten. Der großzügige Wohn- und Essbereich mit Küche ist das Highlight des Hauses. Der (teilausgebaute) Dachboden bietet weiteres Ausbaupotential, hier können mit etwas Aufwand zwei bis drei zusätzliche Zimmer entstehen. Erste bauliche Maßnahmen wurden bereits vorgenommen. Der großzügige Kellerbereich bietet nicht nur Anschlüsse für Waschmaschine und Trockner sowie die Heizungsanlage, sondern auch viel Stauraum: Ein Vorratsraum, weitere Abstellmöglichkeiten sowie ein möglicher Arbeits- oder Gästebereich stehen zur Verfügung. Der großzügige Garten lädt zum Entspannen und Spielen ein. Das vollständig eingefriedete Grundstück ist von einer gepflegten Hecke umgeben, der rückwärtige Gartenbereich ist uneinsehbar und sorgt für Privatsphäre. Eine gemütliche Gartenhütte bietet zusätzlichen Stauraum oder Platz für kreative Hobbys. Die Gasheizung wurde im Jahr 2004 erneuert. Zwei Fenster wurden im Jahr 2016 ausgetauscht. Zwei Garagen bieten ausreichend Platz für Ihre Fahrzeuge sowie zusätzlichen Stauraum für Fahrräder, Gartengeräte oder Werkstattideen. Für eine individuelle Gestaltung und moderne Wohnideen sind Renovierungsarbeiten einzuplanen, so können Sie Ihre eigenen Vorstellungen umsetzen. Die Immobilie liegt in ländlicher Umgebung, nahe der Lethe, und bietet eine idyllische Lage am Feldrand, ideal für Spaziergänge. Nach aktueller Einschätzung ist die Errichtung einer Gaube mit einem Velux-Fenster voraussichtlich genehmigungsfrei möglich. Durch diese Maßnahme kann eine Wohnflächenvergrößerung von bis zu einem Drittel erzielt werden. Die Umsetzung hat in Eigenverantwortung sowie unter Berücksichtigung und Klärung der baurechtlichen Vorgaben zu erfolgen.Ausstattung
+ großer Garten+ 2 Garagen
+ Keller mit viel Stauraum
+ großer Dachboden mit Ausbaureserve
+ Gäste-WC
+ Kamin
+ Gartenhütte
+ überdachter Eingangsbereich
+ 2 Fenster aus 2016
+ renovierungs-/sanierungsbedürftig
+ Renovierungsarbeiten im Jahr 2017 wie z.B. die Erneuerung des Gäste-WCs, Grundrissveränderungen, neue Böden